聯系電話如果您正在尋找相關產品或有其他任何問題,可隨時撥打我公司銷售熱線:400-8789-055
在線咨詢裝卸鶴管生產廠家有哪些?鶴管(流體裝卸臂)生產廠家哪家好?裝卸鶴管生產品牌廠家(Autower)深奧圖13年專注汽車/火車發油鶴管、上/下裝鶴管、卸油鶴管、汽車裝卸鶴管、汽車鶴管、液氨鶴管裝車鶴管、卸車鶴管、卸油鶴管、低溫鶴管、石油鶴管、LNG鶴管,陸用流體裝卸臂型號齊全、價格實惠公道合理。

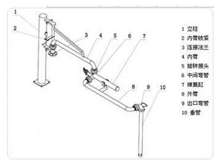
裝卸鶴管生產廠家
裝卸鶴管生產廠家(Autower)深奧圖熱銷鶴管按照安裝方式分為上裝鶴管和下裝鶴管,熱銷中的深奧圖鶴管型號有【上裝鶴管】型號AL1412密閉式頂部裝卸臂、【上裝鶴管】型號AL1402F1襯四氟頂部裝車臂、【上裝鶴管】型號AL1401頂部陸用流體裝卸臂、【下裝鶴管】型號AL2503底部裝卸臂、【下裝鶴管】AL2543底部陸用流體裝卸臂、【下裝鶴管】型號AL1204底部密閉鶴管,鶴管(陸用流體裝卸臂)選型主要型號如下: 總體文字介紹結束,以下為各型號的適用范圍,鶴管圖文并茂詳解深奧圖鶴管特征.

鶴管型號
【上裝鶴管】型號AL1412密閉式頂部裝卸臂
鶴管生產廠家(Autower)深奧圖
◆ 使用范圍:罐車頂部雙管密閉裝車,上為氣相管,(可為部分軟管),下為液相管,可對已揮發的介質進行回收。
◆ 適用介質:有揮發性的、有毒性的介質
◆ 設計壓力:1.0MPa 、1.6MPa 、2.5MPa 等
◆ 設計溫度:-196℃~+160℃
◆ 設備規格:液相管道公稱口徑范圍為DN50-DN200
◆ 可選附件:靜電溢油保護器、液位開關、定量裝車控制系統(含流量計、閥門、壓力表、溫度及壓力變送器)等
【上裝鶴管】型號AL1402F1襯四氟頂部裝車臂
卸車鶴管
卸車鶴管
◆ 使用范圍:罐車頂部裝車,管道內襯聚四氟乙烯(PTFE),專用于強酸強堿等具有強腐蝕性介質的裝卸,接口可變
◆ 適用介質:酸、堿等強腐蝕性介質
◆ 設計壓力:1.0MPa 、1.6MPa 、2.5MPa 等
◆ 設計溫度:-196℃~+160℃
◆ 設備規格:液相管道公稱口徑范圍為DN50-DN200
◆ 可選附件:靜電溢油保護器、液位開關、定量裝車控制系統(含流量計、閥門、壓力表、溫度及壓力變送器)等
【上裝鶴管】型號AL1401頂部陸用流體裝卸臂

頂部裝車鶴管
◆ 使用特點:罐車頂部裝車
◆ 使用介質:原油、成品油、化工介質
◆ 設計壓力:1.0MPa 、1.6MPa 、2.5MPa 等
◆ 設計溫度:-196℃~+160℃
◆ 設備規格:液相管道公稱口徑范圍為DN50-DN200
◆ 可選附件:靜電溢油保護器、液位開關、定量裝車控制系統(含過濾器、流量計、閥門、壓力表、溫度及壓力變送器)等
【下裝鶴管】型號AL2503底部裝卸臂
◆ 使用范圍:罐車底部(側面)裝卸、接口可向下、可側向,與罐車接口為快速接頭或松套法蘭
◆ 適用介質:原油、渣油、化工介質、水煤漿等
◆ 設計壓力:1.0MPa 、1.6MPa 、2.5MPa 等
◆ 設計溫度:-196℃~+160℃
◆ 設備規格:液相管道公稱口徑范圍為DN50-DN200
◆ 可選附件:靜電溢油保護器、液位開關、定量裝車控制系統(流量計、閥門、壓力表、溫度及壓力變送器)等
【下裝鶴管】AL2543底部陸用流體裝卸臂
◆ 使用范圍:此類型鶴管用于汽車液化氣或液氨類產品的裝卸作業, 上下各采用五個旋轉接頭,一般上為氣相,下為液相,前端配有專用快速接頭直接與汽車接口相連。
◆ 適用介質:液化石油氣、液氨、二甲醚等高揮發性化工介質
◆ 設計壓力:1.0MPa 、1.6MPa 、2.5MPa 等
◆ 設計溫度:-196℃~+160℃
◆ 設備規格:液相管道公稱口徑范圍為DN50-DN200
◆ 可選附件:靜電溢油保護器、液位開關、定量裝車控制系統(流量計、閥門、壓力表、溫度及壓力變送器)等
【下裝鶴管】型號AL1204底部密閉鶴管

裝車鶴管
◆ 底部裝車鶴管國際上先進的底部發油裝置,適用于多倉同時裝車, 三組臂或四組臂以上設計,采用快速干式接頭連接,它能實現快速對接,增加安全性,提高裝車效率;同時在油氣類介質裝卸時使用,能大大減少斷開時液體的損耗 ,適用于多倉同時裝車,減少人工成本。
◆ 設備規格:液相管道公稱口徑DN100
◆ 可選附件:靜電溢油保護器、液位開關、定量裝車控制系統(流量計、閥門、壓力表、溫度及壓力變送器)等
鶴管(流體裝卸臂)生產廠家哪家好?優質裝卸鶴管生產廠家看準鶴管品牌廠家(Autower)深奧圖.廠家實力雄厚,湖北廠房占地面積35000多平方米,擁有標準廠房4座,面積6000多平方米,辦公樓、研發中心等建筑面積共約4500平米,擁有國內最先進的數控機床、數控沖床、折彎機、氬弧爆機、液壓剪板機、沖床、切割機、焊接設備、表面處理系統、高溫老化箱、高、低溫實驗驗等50多臺套,并擁有一套先進的流量在線標定系統,以及多種儀表和電子產品檢測設備。


專業智能一卡通裝卸車系統廠家,在國內外積累了豐富的施工經驗,歡迎您預約就近省份地區的實地案例進行考察。










































